Каркасные дома и
дома из бруса под ключ
8 (800) 555-21-96
Россия
8 (499) 281-64-71
Москва
8 (812) 425-69-22
Санкт-Петербург
Живые фото в VK
Москва
ул. Проходчиков д. 16
10:00 до 20:00 Без обеда и выходных
Москва и
область

Одноэтажный каркасный дом «Арда» 13,5х9

Назад
Каркас
Холодный
контур
2 591 650
Теплый
контур
3 467 350
Под
ключ
4 286 350
Подробные комплектации Живые фото
ООО «ПБК ПЛЮС»
ИНН: 5313014586
Аккредитованный подрядчик
в СберБанк и ДОМ.РФ
8% Ипотека с господдержкой
6% Семейная ипотека
5% Ипотека для IT
Характеристики
Материал стен
Материал стен
Каркас
Этажность
Этажность
1
Размеры
Размеры
13,5 на 9
Площадь застройки
Площадь застройки
122 м2
Общая площадь
Общая площадь
112 м2
Сроки строительства
Сроки строительства
32-36 дней
Кол-во С/У
Кол-во С/У
1
Кол-во комнат
Кол-во комнат
3
Балкон
Балкон
Нет
Терраса
Терраса
Есть
Панорамные окна
Панорамные окна
Нет
Второй свет
Второй свет
Нет
5 лет
гарантия
по договору!
Технадзор
на каждом этапе
строительства
Строительство
по
проекту
Сухой
строганный
материал
Живые фото
д. Затуленье, Лужский район, Ленинградская область
02.08.2021
Комплектация
Возможна перепланировка по данному проекту,
а также изменение в комплектации
2 591 650
Холодный контур
3 467 350
Теплый контур
4 286 350
Под ключ
Пиломатериал.
КАМЕРНОЙ СУШКИ.
Обвязка.
Первый венец из не строганного бруса 150х150 мм.
Второй венец из не строганной доски 200х50 мм.
Лаги из не строганной доски 200х50 мм.
Подшивная не строганная доска 40х100 мм.
Черновой пол из не строганной доски 20х100 мм.
Обработка антисептиком.
Сетка от грызунов.
Пол.
Влаго-ветрозащита: Ondutis А100.
Утепление пола 200 мм.
Паро-влагоизоляция: Ondutis R70.
Вент-зазор: Строганная рейка 20х40 мм.
Чистовая отделка пола: Плиты ДСП.
Стены.
Высота потолка 2.6 м.
Силовой каркас из не строганной доски 150х40 мм.
Раскосы из не строганной доски 100х40 мм.
Ригеля из не строганной доски 150х40 мм.
Ветро-влагозащита: Ondutis А100.
Вентилируемый фасад: Калиброванный брусок 45х45 мм.
Внешняя отделка: Имитации бруса сорт "АВ".
Утепление стен 150 мм.
Перехлестное утепление снаружи 50 мм.
Паро-влагоизоляция: Ondutis R70.
Вент-зазор: Строганная рейка 20х40 мм.
Внутренняя отделка: Имитации бруса сорт "АВ".
Перегородки.
Силовой каркас из не строганной доски 100х40 мм.
Раскосы из не строганной доски 100х40 мм.
Ригеля из не строганной доски 100х40 мм.
Звукоизоляция 100 мм.
Паро-влагоизоляция: Ondutis А100.
Вент-зазор: Строганная рейка 20х40 мм.
Отделка: Имитации бруса сорт "АВ".
Чердачное перекрытие.
Вторая верхняя обвязка из не строганной доски 150х40 мм. и 100х40 мм.
Перекрытия из не строганной доски 200х50 мм.
Утепление потолка 200 мм.
Паро-влагоизоляция: Ondutis R70.
Вент-зазор: Строганная рейка 20х40 мм.
Отделка: Имитации бруса сорт "АВ".
Крыша дома и террасы.
Стропильная система из не строганной доски 150х40 мм.
Ветро-влагозащита: Ondutis SА115.
Контробрешетка из калиброванного бруска 45х45 мм.
Обрешетка из не строганной доски 100х22 мм.
Кровельный материал: Металлочерепица 0.45 мм, профиль - Монтерей.
Кровельные комплектующие.
Свесы крыши 500 мм: Имитации бруса сорт "АВ".
Торцевые из строганной доски.
Вентиляционные решетки во фронтонах.
Окна.
Двухкамерные стеклопакеты с профилем 60 мм.
Подоконники ПВХ шириной 200 мм.
Откосы наружные из строганной доски.
Откосы внутренние из строганной доски.
Наличник наружный из строганной доски.
Наличник внутренний из строганной доски.
Отлив металлический снаружи.
Двери.
Входная металлическая, производство Россия.
Двери внутренние.
Оформление стыков.
Плинтус и нащельник хвойных пород внутри дома.
Наружные углы дома из строганной доски.
Терраса.
Первый венец из не строганного бруса 150х150 мм.
Второй венец из не строганного бруса 200х100 мм.
Лаги из не строганной доски 200х50 мм.
Полы из строганной доски 36 мм. "Вельвет".
Столбы из строганного бруса 140х140 мм.
Перила из строганной доски 140х35 мм.
Балясины из строганной доски 90х36 мм.
Потолок: Имитации бруса сорт "АВ".
Организация строительства.
Доставка 500 км от производства.
Сборка.
Разгрузка.
Покраска дома снаружи.
Фундамент.
Отопление.
Канализация.
Электрика.
Бытовка для проживания строителей.
Туалет.

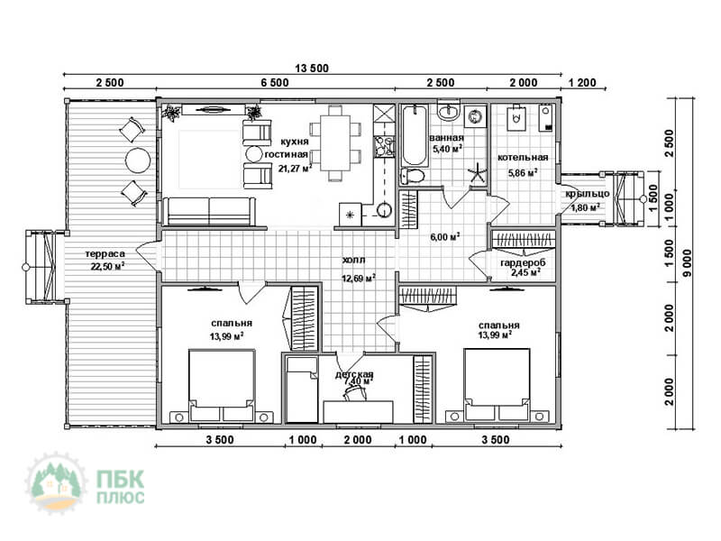
Общая площадь просторного одноэтажного дома составляет более 110 кв.м, что позволяет с комфортом разместиться семье из 4-5 человек. Проект каркасного здания «Арда» оптимально подойдет для тех жильцов, которые привыкли к простору и комфорту. А отсутствие второго этажа положительно скажется на дополнительном удобстве пенсионеров и пожилых людей.

Внешний вид дома

Здание имеет прямоугольную форму с четырехскатной крышей сложной формы. Внешне выглядит немного приземисто, дополнительную привлекательность обеспечивает наличие крыльца и террасы, расположенных с разных сторон фасада.

Кровля – прочная металлочерепица, каркасные стены имитируют натуральный брус. Фасад дома вентилируемый, предусмотрено изготовление паро- и влагоизоляции, а также утепление стен (при соответствующем заказе).

Особенности внутренней планировки

Внушительные габаритные размеры позволили спроектировать максимально необходимое количество внутренних помещений, разделив дом на функциональные зоны:

  • хозяйственную;
  • санитарно-бытовую;
  • отдыха;
  • приготовления пищи, общения.

Вход внутрь предусмотрен сразу с двух сторон. Через крыльцо можно попасть в котельную, а через нее - в холл. Центральный же вход сделан со стороны террасы, просторной и уютной, являющейся дополнительным пространствам для отдыха и работы в летнее время.

Площадь кухни-гостиной достаточно большая. Кроме того, в доме есть 2 спальные комнаты, разделенные детской. В каждом помещении предусмотрено достаточно места для организации систем хранения, кроме того, есть отдельная гардеробная.

Основные этапы строительства

Предлагаем следующий порядок организации взаимодействия:

  • подача заявки;
  • подготовка документации, согласование;
  • заключение договора;
  • подготовка стройматериала в соответствии с ТЗ;
  • доставка комплекта материалов и оборудования на объект;
  • возведение дома.

По окончании работы, точно в установленные сроки объект сдается заказчику, после чего производится окончательный расчет.

Компания ПБК Плюс – это настоящие профессионалы!

Акции для каркасных домов
Свяжитесь с нами по этому проекту
для уточнения информации
Шибаков Сергей
Шибаков Сергей главный инженер
8 (800) 555-21-96 (Звонок для Вас бесплатный)

5 шагов для осуществления своей мечты

step2
Встречаемся в офисе
или общаемся online
step3
Заключаем
договор
step4
Завозим материал
и строим дом
step5
Мечта
сбылась!
Добро пожаловать!

Мы используем файлы cookies для улучшения работы сайта. Продолжая пользоваться сайтом, вы соглашаетесь с нашей политикой