Каркасные дома и
дома из бруса под ключ
8 (800) 555-21-96
Россия
8 (499) 281-64-71
Москва
8 (812) 425-69-22
Санкт-Петербург
Живые фото в VK
Москва
ул. Проходчиков д. 16
10:00 до 20:00 Без обеда и выходных
Москва и
область

Одноэтажный каркасный дом 14х10м. в Ленинградской области.

Одноэтажный каркасный дом 14х10м. в Ленинградской области.
Смотреть в каталоге
В проект входит:
Фундамент | Кровля | Силовой каркас | Утепление | Отделка | Окна, дверь | Водосточная система | Покраска дома | Электрика | Технадзор | Гарантия | Персональный менеджер
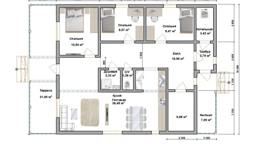
Геннадию Александровичу понравился наш типовой проект одноэтажного каркасного дома 13х9м «Арда». Мы внесли в него несколько изменений, согласно пожеланиям Заказчика, и увеличили проект до 14х10м.  В доме имеется три спальни, два сан.узла, котельная, кладовая и большая кухня-гостиная. Дом получился шикарный и будет радовать всю семью долгие годы.

Выполненные работы: свайно-винтовой фундамент, 
силовой-каркас камерной сушки, утепление 200 мм, наружная и внутренняя отделка (имитация бруса камерной сушки), кровля - металлочерепица, установка ПВХ окон с двухкамерными стеклопакетами, монтаж межкомнатных и входных дверей, водосточная система «Дёке», москитные сетки, композитная террасная доска, покраска дома, электрика.

Добро пожаловать!

Мы используем файлы cookies для улучшения работы сайта. Продолжая пользоваться сайтом, вы соглашаетесь с нашей политикой