Каркасные дома и
дома из бруса под ключ
8 (800) 555-21-96
Россия
8 (499) 281-64-71
Москва
8 (812) 425-69-22
Санкт-Петербург
Живые фото в VK
Москва
ул. Проходчиков д. 16
10:00 до 20:00 Без обеда и выходных
Москва и
область

Полутораэтажный каркасный дом «Алазея» 13х8

Назад
Каркас
Холодный
контур
2 739 700
Теплый
контур
3 915 700
Под
ключ
4 912 150
Подробные комплектации Живые фото
ООО «ПБК ПЛЮС»
ИНН: 5313014586
Аккредитованный подрядчик
в СберБанк и ДОМ.РФ
8% Ипотека с господдержкой
6% Семейная ипотека
5% Ипотека для IT
Характеристики
Материал стен
Материал стен
Каркас
Этажность
Этажность
1.5
Размеры
Размеры
13 на 8
Площадь застройки
Площадь застройки
91 м2
Общая площадь
Общая площадь
133 м2
Сроки строительства
Сроки строительства
35-40 дней
Кол-во С/У
Кол-во С/У
2
Кол-во комнат
Кол-во комнат
5
Балкон
Балкон
Нет
Терраса
Терраса
Есть
Панорамные окна
Панорамные окна
Нет
Второй свет
Второй свет
Нет
5 лет
гарантия
по договору!
Технадзор
на каждом этапе
строительства
Строительство
по
проекту
Сухой
строганный
материал
Живые фото
Любытино, Новгородская обл.
23.09.2023
пос. Часцы, Одинцовский округ, Московская обл.
15.05.2022
Комплектация
Возможна перепланировка по данному проекту,
а также изменение в комплектации
2 739 700
Холодный контур
3 915 700
Теплый контур
4 912 150
Под ключ
Пиломатериал.
КАМЕРНОЙ СУШКИ.
Обвязка.
Первый венец из не строганного бруса 150х150 мм.
Второй венец из не строганной доски 200х50 мм.
Лаги из не строганной доски 200х50 мм.
Подшивная не строганная доска 40х100 мм.
Черновой пол из не строганной доски 20х100 мм.
Обработка антисептиком.
Сетка от грызунов.
Пол 1-го этажа.
Влаго-ветрозащита: Ondutis А100.
Утепление пола 200 мм.
Паро-влагоизоляция: Ondutis R70.
Вент-зазор: Строганная рейка 20х40 мм.
Чистовая отделка пола: Плиты ДСП.
Полы 2-го этажа.
Паро-влагоизоляция: Ondutis R70.
Утепление пола 200 мм.
Вент-зазор: Строганная рейка 20х40 мм.
Чистовая отделка пола: Плиты ДСП.
Стены 1-го и 2-го этажа.
Высота потолка 1-го этажа 2.6 м, 2-го 2.5 м.
Силовой каркас из не строганной доски 150х40 мм.
Раскосы из не строганной доски 100х40 мм.
Ригеля из не строганной доски 150х40 мм.
Ветро-влагозащита: Ondutis А100.
Вентилируемый фасад: Калиброванный брусок 45х45 мм.
Внешняя отделка: Имитации бруса сорт "АВ".
Утепление стен 150 мм.
Перехлестное утепление снаружи 50 мм.
Паро-влагоизоляция: Ondutis R70.
Вент-зазор: Строганная рейка 20х40 мм.
Внутренняя отделка: Имитации бруса сорт "АВ".
Перегородки.
Силовой каркас из не строганной доски 100х40 мм.
Раскосы из не строганной доски 100х40 мм.
Ригеля из не строганной доски 100х40 мм.
Звукоизоляция 100 мм.
Паро-влагоизоляция: Ondutis А100.
Вент-зазор: Строганная рейка 20х40 мм.
Отделка: Имитации бруса сорт "АВ".
Чердачное перекрытие.
Вторая верхняя обвязка из не строганной доски 150х40 мм. и 100х40 мм.
Перекрытия из не строганной доски 200х50 мм.
Утепление потолка 200 мм.
Паро-влагоизоляция: Ondutis R70.
Вент-зазор: Строганная рейка 20х40 мм.
Отделка: Имитации бруса сорт "АВ".
Крыша дома, террасы и крыльца.
Стропильная система из не строганной доски 150х40 мм.
Ветро-влагозащита: Ondutis SА115.
Контробрешетка из калиброванного бруска 45х45 мм.
Обрешетка из не строганной доски 100х22 мм.
Кровельный материал: Металлочерепица 0.45 мм, профиль - Монтерей.
Кровельные комплектующие.
Свесы крыши 500 мм: Имитации бруса сорт "АВ".
Торцевые из строганной доски.
Вентиляционные решетки во фронтонах.
Окна.
Двухкамерные стеклопакеты с профилем 60 мм.
Подоконники ПВХ шириной 200 мм.
Откосы наружные из строганной доски.
Откосы внутренние из строганной доски.
Наличник наружный из строганной доски.
Наличник внутренний из строганной доски.
Отлив металлический снаружи.
Двери.
Входная металлическая, производство Россия.
Двери внутренние.
Оформление стыков.
Плинтус и нащельник хвойных пород внутри дома.
Наружные углы дома из строганной доски.
Терраса, крыльцо.
Первый венец из не строганного бруса 150х150 мм.
Второй венец из не строганного бруса 200х100 мм.
Лаги из не строганной доски 200х50 мм.
Полы из строганной доски 36 мм. "Вельвет".
Столбы из строганного бруса 140х140 мм.
Перила из строганной доски 140х35 мм.
Балясины из строганной доски 90х36 мм.
Потолок: Имитации бруса сорт "АВ".
Организация строительства.
Доставка 500 км от производства.
Сборка.
Разгрузка.
Покраска дома снаружи.
Фундамент.
Отопление.
Канализация.
Электрика.
Бытовка для проживания строителей.
Туалет.

Полутораэтажный каркасный дом «Алазея» – объект, отличающийся изысканным экстерьером и планировкой высокого уровня комфортности. Дом придется по душе семьям с детьми, людям пенсионного возраста и парам, которые обожают принимать гостей и хотят хорошо проводить время на природе. Объект подходит как для сезонного проживания, так и в течение всего года.

Внешний вид

В дизайне экстерьера удачно сочетаются современные модные веяния и классические мотивы. Большие окна хорошо пропускают солнечный свет. Просторная терраса, дополненная индивидуальной кровлей-навесом, станет любимым местом отдыха. Красоту объекта подчеркнет ландшафтный дизайн в современном стиле, деревянная беседка или бассейн.

Внутренняя планировка

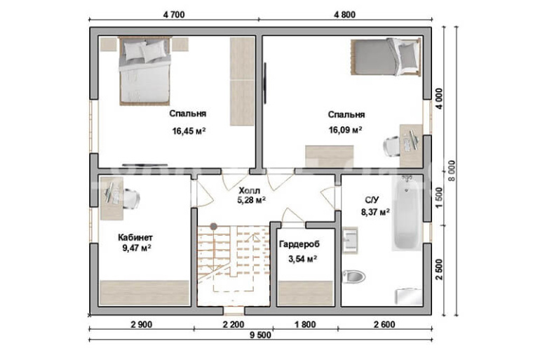
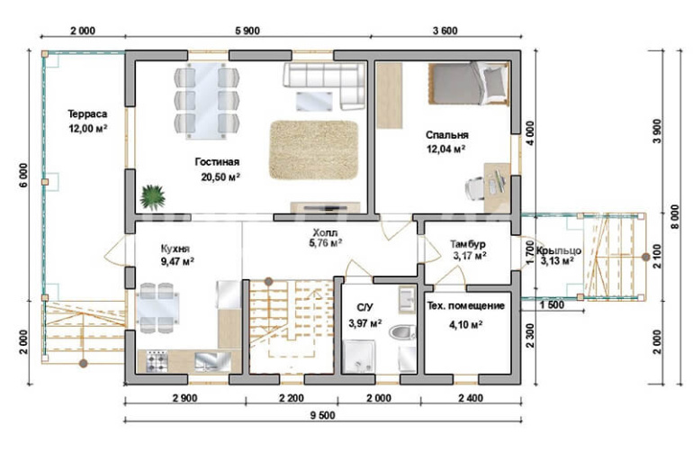
На первом этаже располагаются тамбур и техническое помещение. Предусмотрен совмещенные санузел с душевой кабиной. Здесь расположена кухня, которую можно разделить на полезные зоны: для приема и приготовления пищи. Так же имеется большая спальня и просторная гостиная, в которой приятно принимать друзей и отдыхать. На втором этаже расположены 2 спальни, в которых смогут разместиться хозяева и дети. Завершают планировочную композицию кабинет, гардеробная комната и совмещенный санузел. Соединяет все помещения холл.

Надежные проекты домов, разработанные силами «ПБК-Плюс»

Наша компания заботится о каждом клиенте, поэтому мы создаем практичные и доступные проекты для людей, выдвигающих разные требования к загородной недвижимости. Каждый проект компании «ПБК-Плюс» создан с оглядкой на установленные нормы. Если вы заинтересованы в проекте или желаете узнать больше, то закажите обратный звонок или позвоните нам по телефону: 8-800-555-21-96.

Акции для каркасных домов
Свяжитесь с нами по этому проекту
для уточнения информации
Шибаков Сергей
Шибаков Сергей главный инженер
8 (800) 555-21-96 (Звонок для Вас бесплатный)

5 шагов для осуществления своей мечты

step2
Встречаемся в офисе
или общаемся online
step3
Заключаем
договор
step4
Завозим материал
и строим дом
step5
Мечта
сбылась!
Добро пожаловать!

Мы используем файлы cookies для улучшения работы сайта. Продолжая пользоваться сайтом, вы соглашаетесь с нашей политикой