Каркасные дома и
дома из бруса под ключ
8 (800) 555-21-96
Россия
8 (499) 281-64-71
Москва
8 (812) 425-69-22
Санкт-Петербург
Живые фото в VK
Москва
ул. Проходчиков д. 16
10:00 до 20:00 Без обеда и выходных
Москва и
область

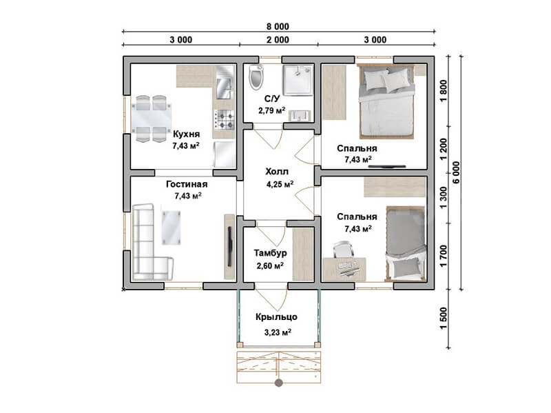
Одноэтажный каркасный дом «Нолгаш» 8х6

Назад
Каркас
Холодный
контур
1 498 600
Теплый
контур
1 961 650
Под
ключ
2 350 150
Подробные комплектации Живые фото
ООО «ПБК ПЛЮС»
ИНН: 5313014586
Аккредитованный подрядчик
в СберБанк и ДОМ.РФ
8% Ипотека с господдержкой
6% Семейная ипотека
5% Ипотека для IT
Характеристики
Материал стен
Материал стен
Каркас
Этажность
Этажность
1
Размеры
Размеры
8 на 6
Площадь застройки
Площадь застройки
52 м2
Общая площадь
Общая площадь
43 м2
Сроки строительства
Сроки строительства
20-22 дня
Кол-во С/У
Кол-во С/У
1
Кол-во комнат
Кол-во комнат
3
Балкон
Балкон
Нет
Терраса
Терраса
Нет
Панорамные окна
Панорамные окна
Нет
Второй свет
Второй свет
Нет
5 лет
гарантия
по договору!
Технадзор
на каждом этапе
строительства
Строительство
по
проекту
Сухой
строганный
материал
Живые фото
Киржачский район, СНТ Крутые берега
07.03.2026
г. Сергиев-Посад, СНТ Земляделец
17.10.2020
Комплектация
Возможна перепланировка по данному проекту,
а также изменение в комплектации
1 498 600
Холодный контур
1 961 650
Теплый контур
2 350 150
Под ключ
Пиломатериал.
КАМЕРНОЙ СУШКИ.
Обвязка.
Первый венец из не строганного бруса 150х150 мм.
Второй венец из не строганной доски 200х50 мм.
Лаги из не строганной доски 200х50 мм.
Подшивная не строганная доска 40х100 мм.
Черновой пол из не строганной доски 20х100 мм.
Обработка антисептиком.
Сетка от грызунов.
Пол.
Влаго-ветрозащита: Ondutis А100.
Утепление пола 200 мм.
Паро-влагоизоляция: Ondutis R70.
Вент-зазор: Строганная рейка 20х40 мм.
Чистовая отделка пола: Плиты ДСП.
Стены.
Высота потолка 2.6 м.
Силовой каркас из не строганной доски 150х40 мм.
Раскосы из не строганной доски 100х40 мм.
Ригеля из не строганной доски 150х40 мм.
Ветро-влагозащита: Ondutis А100.
Вентилируемый фасад: Калиброванный брусок 45х45 мм.
Внешняя отделка: Имитации бруса сорт "АВ".
Утепление стен 150 мм.
Перехлестное утепление снаружи 50 мм.
Паро-влагоизоляция: Ondutis R70.
Вент-зазор: Строганная рейка 20х40 мм.
Внутренняя отделка: Имитации бруса сорт "АВ".
Перегородки.
Силовой каркас из не строганной доски 100х40 мм.
Раскосы из не строганной доски 100х40 мм.
Ригеля из не строганной доски 100х40 мм.
Звукоизоляция 100 мм.
Паро-влагоизоляция: Ondutis А100.
Вент-зазор: Строганная рейка 20х40 мм.
Отделка: Имитации бруса сорт "АВ".
Чердачное перекрытие.
Вторая верхняя обвязка из не строганной доски 150х40 мм. и 100х40 мм.
Перекрытия из не строганной доски 200х50 мм.
Утепление потолка 200 мм.
Паро-влагоизоляция: Ondutis R70.
Вент-зазор: Строганная рейка 20х40 мм.
Отделка: Имитации бруса сорт "АВ".
Крыша дома и крыльца.
Стропильная система из не строганной доски 150х40 мм.
Ветро-влагозащита: Ondutis SА115.
Контробрешетка из калиброванного бруска 45х45 мм.
Обрешетка из не строганной доски 100х22 мм.
Кровельный материал: Металлочерепица 0.45 мм, профиль - Монтерей.
Кровельные комплектующие.
Свесы крыши 500 мм: Имитации бруса сорт "АВ".
Торцевые из строганной доски.
Вентиляционные решетки во фронтонах.
Окна.
Двухкамерные стеклопакеты с профилем 60 мм.
Подоконники ПВХ шириной 200 мм.
Откосы наружные из строганной доски.
Откосы внутренние из строганной доски.
Наличник наружный из строганной доски.
Наличник внутренний из строганной доски.
Отлив металлический снаружи.
Двери.
Входная металлическая, производство Россия.
Двери внутренние.
Оформление стыков.
Плинтус и нащельник хвойных пород внутри дома.
Наружные углы дома из строганной доски.
Крыльцо.
Первый венец из не строганного бруса 150х150 мм.
Второй венец из не строганного бруса 200х100 мм.
Лаги из не строганной доски 200х50 мм.
Полы из строганной доски 36 мм. "Вельвет".
Столбы из строганного бруса 140х140 мм.
Перила из строганной доски 140х35 мм.
Балясины из строганной доски 90х36 мм.
Потолок: Имитации бруса сорт "АВ".
Организация строительства.
Доставка 500 км от производства.
Сборка.
Разгрузка.
Покраска дома снаружи.
Фундамент.
Отопление.
Канализация.
Электрика.
Бытовка для проживания строителей.
Туалет.

Одноэтажный каркасный дом «Нолгаш» – удобный объект, который удовлетворит требования небольшой семьи и людей, любящих проводить время загородом. Отличается эргономичной планировкой и изысканной красотой экстерьера.

Внешний вид

Фасад одноэтажного дома украшают окна, через которые будет проходить много дневного света. Планировка предусматривает наличие уютного огражденного крыльца, защищенного кровлей. Дизайн фасада классический, может быть окружен как клумбами с экзотическими цветами, так и ландшафтным дизайном в стиле минимализм.

Внутренняя планировка

Попасть в дом можно с крыльца, на первом этаже обустроены тамбур, холл и санузел. Доступны просторная гостиная, кухня, которая может использоваться как столовая. Две спальни не являются проходными, что обеспечивает уединение.

Практичные проекты домов в компании «ПБК-Плюс»

Наша компания – лидер в области строительства и проектирования, мы специализируемся на создании загородных домов, а также бань. Занимаемся производством материалов, используя лучшее оборудование и сырье. Доставляем продукцию по территории практически всей России, имеем опыт работы более 15 лет. Предлагаем выгодные способы оплаты, в том числе и материнский капитал, кредит, ипотеку. Вы можете узнать больше, заказав обратный звонок. Мы с радостью предоставим консультацию по всем вопросам, касающимся представленного проекта.

Акции для каркасных домов
Свяжитесь с нами по этому проекту
для уточнения информации
Шибаков Сергей
Шибаков Сергей главный инженер
8 (800) 555-21-96 (Звонок для Вас бесплатный)

5 шагов для осуществления своей мечты

step2
Встречаемся в офисе
или общаемся online
step3
Заключаем
договор
step4
Завозим материал
и строим дом
step5
Мечта
сбылась!
Добро пожаловать!

Мы используем файлы cookies для улучшения работы сайта. Продолжая пользоваться сайтом, вы соглашаетесь с нашей политикой