Каркасные дома и
дома из бруса под ключ
8 (800) 555-21-96
Россия
8 (499) 281-64-71
Москва
8 (812) 425-69-22
Санкт-Петербург
Живые фото в VK
Москва
ул. Проходчиков д. 16
10:00 до 20:00 Без обеда и выходных
Москва и
область

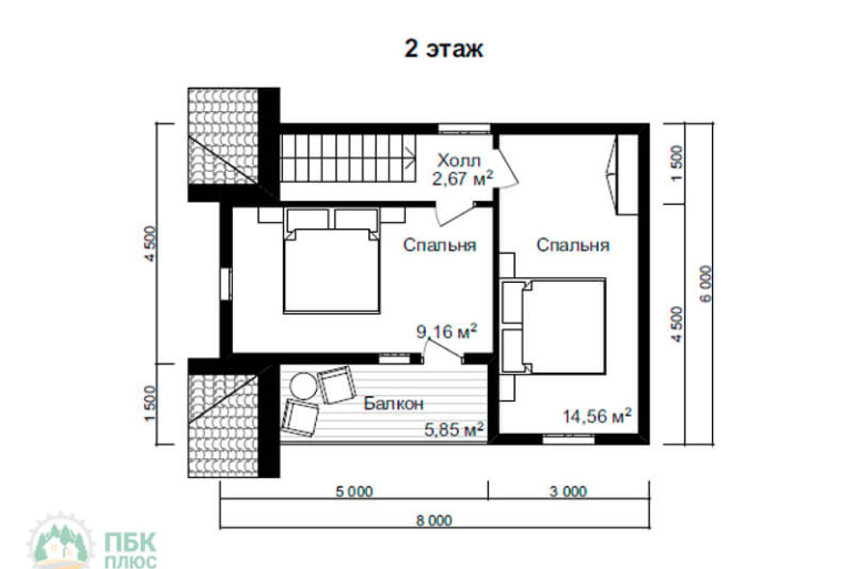
Дом из бруса «Тифина» 8х6 с террасой, кукушкой и балконом

Назад
Под усадку 150 мм.
2 303 950
Под усадку 200 мм.
2 793 250
Под ключ 200 мм.
4 179 250
Подробные комплектации
ООО «ПБК ПЛЮС»
ИНН: 5313014586
Аккредитованный подрядчик
в СберБанк и ДОМ.РФ
8% Ипотека с господдержкой
6% Семейная ипотека
5% Ипотека для IT
Характеристики
Материал стен
Материал стен
Брус
Этажность
Этажность
1.5
Размеры
Размеры
8 на 6
Площадь застройки
Площадь застройки
48 м2
Общая площадь
Общая площадь
74 м2
Сроки строительства
Сроки строительства
25-30 дней
Кол-во С/У
Кол-во С/У
1
Кол-во комнат
Кол-во комнат
2
Балкон
Балкон
Есть
Терраса
Терраса
Есть
Панорамные окна
Панорамные окна
Нет
Второй свет
Второй свет
Нет
5 лет
гарантия
по договору!
Технадзор
на каждом этапе
строительства
Строительство
по
проекту
Сухой
строганный
материал
Комплектация
Возможна перепланировка по данному проекту,
а также изменение в комплектации
2 303 950
Под усадку 150 мм.
2 793 250
Под усадку 200 мм.
4 179 250
Под ключ 200 мм.
Пиломатериал.
КАМЕРНОЙ СУШКИ.
Обвязка.
Первый венец из не строганного бруса 200х150 мм.
Второй венец из не строганного бруса 200х150 мм.
Лаги из не строганной доски 200х50 мм.
Подшивная не строганная доска 40х100 мм.
Черновой пол из не строганной доски 20х100 мм.
Обработка антисептиком.
Сетка от грызунов.
Пол 1-го этажа.
Влаго-ветрозащита: Ondutis А100.
Утепление пола 200 мм рулонным утеплителем.
Паро-влагоизоляция: Ondutis R70.
Вент-зазор: Строганная рейка 20х40 мм.
Чистовая отделка пола: Плиты ДСП.
Полы 2-го этажа.
Перекрытия из не строганной доски 150х50мм.
Перекрытия из не строганной доски 200х50мм.
Паро-влагоизоляция: Ondutis R70.
Утепление пола 200 мм рулонным утеплителем.
Вент-зазор: Строганная рейка 20х40 мм.
Чистовая отделка пола: Плиты ДСП.
Стены 1-го этажа.
Высота 2.6м (+/- 50мм).
Сруб: Брус профилированный 132х135мм.
Сруб: Брус профилированный 132х185мм.
Тёплый угол.
Сборка на деревянные нагеля.
Межвенцовый утеплитель.
Стены 2-го этажа.
Высота 2.4м (+/- 50мм).
Силовой каркас из не строганной доски 150х40 мм.
Силовой каркас из не строганной доски 200х50 мм.
Раскосы из не строганной доски 100х40 мм.
Ригеля из не строганной доски 150х40 мм.
Ветро-влагозащита: Ondutis А100.
Вентилируемый фасад: Строганная рейка 20х40 мм.
Внешняя отделка: Имитации бруса сорт "АВ".
Утепление стен 200 мм плитным утеплителем.
Паро-влагоизоляция: Ondutis R70.
Вент-зазор: Строганная рейка 20х40 мм.
Внутренняя отделка: Имитации бруса сорт "АВ".
Перегородки 1-го этажа.
Брус профилированный 132х90мм.
Перегородки 2-го этажа.
Силовой каркас из не строганной доски 100х40 мм.
Раскосы из не строганной доски 100х40 мм.
Ригеля из не строганной доски 100х40 мм.
Звукоизоляция 100 мм.
Паро-влагоизоляция: Ondutis А100.
Вент-зазор: Строганная рейка 20х40 мм.
Отделка: Имитации бруса сорт "АВ".
Чердачное перекрытие.
Перекрытия из не строганной доски 150х50 мм.
Перекрытия из не строганной доски 200х50 мм.
Утепление потолка 200 мм рулонным утеплителем.
Паро-влагоизоляция: Ondutis R70.
Вент-зазор: Строганная рейка 20х40 мм.
Отделка: Имитации бруса сорт "АВ".
Крыша дома, террасы и крыльца.
Стропильная система из не строганной доски 150х40 мм.
Стропильная система из не строганной доски 200х50 мм.
Ветро-влагозащита: Ondutis SА115.
Контробрешетка из калиброванного бруска 45х45 мм.
Обрешетка из не строганной доски 100х20 мм.
Кровельный материал: Металлочерепица 0.45 мм, профиль - Монтерей.
Кровельные комплектующие.
Свесы крыши 500 мм: Имитации бруса сорт "АВ".
Торцевые из строганной доски.
Вентиляционные решетки во фронтонах.
Окна.
Двухкамерные стеклопакеты с профилем 60 мм.
Подоконники ПВХ.
Откосы наружные из строганной доски.
Откосы внутренние из строганной доски.
Наличник наружный из строганной доски.
Наличник внутренний из строганной доски.
Отлив металлический снаружи.
Двери.
Входная металлическая, производство Россия.
Двери внутренние.
Оформление стыков.
Плинтус и нащельник хвойных пород внутри дома.
Наружные углы дома из строганной доски.
Терраса, крыльцо.
Первый венец из не строганного бруса 200х150 мм.
Второй венец из не строганного бруса 200х150 мм.
Лаги из не строганной доски 200х50 мм.
Полы из строганной доски 36 мм. "Вельвет".
Столбы из строганного бруса 140х140 мм.
Перила из строганной доски 140х35 мм.
Балясины из строганной доски 90х36 мм.
Потолок: Имитации бруса сорт "АВ".
Организация строительства.
Доставка 500 км от производства.
Сборка.
Разгрузка.
Покраска дома снаружи.
Фундамент.
Отопление.
Канализация.
Электрика.
Бытовка для проживания строителей.
Туалет.
Акции для каркасных домов
Свяжитесь с нами по этому проекту
для уточнения информации
Шибаков Сергей
Шибаков Сергей главный инженер
8 (800) 555-21-96 (Звонок для Вас бесплатный)

5 шагов для осуществления своей мечты

step2
Встречаемся в офисе
или общаемся online
step3
Заключаем
договор
step4
Завозим материал
и строим дом
step5
Мечта
сбылась!
Добро пожаловать!

Мы используем файлы cookies для улучшения работы сайта. Продолжая пользоваться сайтом, вы соглашаетесь с нашей политикой