Каркасные дома и
дома из бруса под ключ
8 (800) 555-21-96
Россия
8 (499) 281-64-71
Москва
8 (812) 425-69-22
Санкт-Петербург
Живые фото в VK
Москва
ул. Проходчиков д. 16
10:00 до 20:00 Без обеда и выходных
Москва и
область

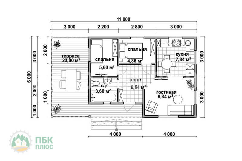
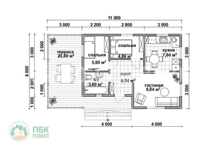
Одноэтажный дачный дом из бруса «Замбези» 11х6

Назад
150х150мм под усадку
1 982 650
150х150мм под ключ
2 616 850
Подробные комплектации
ООО «ПБК ПЛЮС»
ИНН: 5313014586
Аккредитованный подрядчик
в СберБанк и ДОМ.РФ
8% Ипотека с господдержкой
6% Семейная ипотека
5% Ипотека для IT
Характеристики
Материал стен
Материал стен
Брус
Этажность
Этажность
1
Размеры
Размеры
11 на 6
Площадь застройки
Площадь застройки
66 м2
Общая площадь
Общая площадь
59 м2
Сроки строительства
Сроки строительства
25-30 дней
Кол-во С/У
Кол-во С/У
1
Кол-во комнат
Кол-во комнат
3
Балкон
Балкон
Нет
Терраса
Терраса
Есть
Панорамные окна
Панорамные окна
Нет
Второй свет
Второй свет
Нет
5 лет
гарантия
по договору!
Технадзор
на каждом этапе
строительства
Строительство
по
проекту
Сухой
строганный
материал
Комплектация
Возможна перепланировка по данному проекту,
а также изменение в комплектации
1 982 650
150х150мм под усадку
2 616 850
150х150мм под ключ
Пиломатериал.
КАМЕРНОЙ СУШКИ.
ЕСТЕСВЕННОЙ ВЛАЖНОСТИ.
Обвязка.
Первый венец из не строганного бруса 150х150 мм.
Второй венец из не строганного бруса 150х150 мм 150х100мм..
Лаги из не строганной доски 150х50 мм.
Подшивная не строганная доска 40х100 мм.
Черновой пол из не строганной доски 20х100 мм.
Обработка антисептиком.
Пол.
Влаго-ветрозащита: Ondutis А100.
Утепление пола 150 мм рулонным утеплителем.
Паро-влагоизоляция: Ondutis R70.
Вент-зазор: Не строганная рейка 20х40 мм.
Чистовая отделка пола: Половая доска 28мм.
Стены.
Высота потолка 2.5 м.
Сруб: Брус профилированный 138х138мм.
Перегородки.
Брус профилированный 90х138мм.
Чердачное перекрытие.
Перекрытия из не строганной доски 150х50 мм.
Утепление потолка 150 мм рулонным утеплителем.
Паро-влагоизоляция: Ondutis R70.
Вент-зазор: Не строганная рейка 20х40 мм.
Отделка: Хвойная вагонка сорт "АВ".
Крыша дома и крыльца/террасы.
Стропильная система из не строганной доски 150х40 мм.
Ветро-влагозащита: Ondutis SА115.
Контробрешетка из не строганного бруска 45х45 мм.
Обрешетка из не строганной доски 100х20 мм.
Ондулин.
Кровельный материал: Металлочерепица 0.45 мм, профиль - Монтерей.
Свесы крыши 500 мм: Хвойная вагонка сорт "АВ".
Торцевые из строганной доски.
Вентиляционные решетки во фронтонах.
Окна.
Однокамерные стеклопакеты с профилем 60 мм.
Подоконники ПВХ .
Откосы внутренние из строганной доски.
Наличник внутренний и наружный из строганной доски.
Отлив металлический снаружи.
Двери.
Входная металлическая, производство Россия.
Двери внутренние.
Оформление стыков.
Плинтус и нащельник хвойных пород внутри дома.
Наружные углы дома из строганной доски.
Крыльцо и терраса.
Первый венец из не строганного бруса 150х150 мм.
Второй венец из не строганного бруса 150х100 мм.
Лаги из не строганной доски 150х50 мм.
Полы из строганной доски 36 мм. "Вельвет".
Столбы из строганного бруса 140х140 мм.
Перила из строганной доски 140х35 мм.
Балясины из строганной доски 90х16 мм.
Потолок: Хвойная вагонка сорт "АВ".
Организация строительства.
Доставка 500 км от производства.
Сборка.
Разгрузка.
Покраска дома снаружи.
Фундамент.
Отопление.
Канализация.
Электрика.
Бытовка для проживания строителей.
Туалет.
Акции для каркасных домов
Свяжитесь с нами по этому проекту
для уточнения информации
Шибаков Сергей
Шибаков Сергей главный инженер
8 (800) 555-21-96 (Звонок для Вас бесплатный)

5 шагов для осуществления своей мечты

step2
Встречаемся в офисе
или общаемся online
step3
Заключаем
договор
step4
Завозим материал
и строим дом
step5
Мечта
сбылась!
Добро пожаловать!

Мы используем файлы cookies для улучшения работы сайта. Продолжая пользоваться сайтом, вы соглашаетесь с нашей политикой